宋六陵位于浙江省绍兴市越城区富盛镇,是第七批全国重点文物保护单位,埋葬着宋朝徽宗、高宗、孝宗、光宗、宁宗、理宗、度宗在内的七位皇帝,以及北宋哲宗元祐皇后孟后陵在内的七座皇后陵。作为江南地区现存最大的帝后陵园,每一座陵都是一座历史博物馆,神秘的地宫引无数人遐想。日前国家文物局刚刚公布,宋六陵考古遗址公园入选国家考古遗址公园立项名单。
《澎湃新闻·古代艺术》的“江南考古志”栏目本期聚焦宋六陵。“历代帝王陵墓,或多或少都有损毁,但彻底毁坏如宋六陵者,则不多见。”本文从中原与江南不同的堪舆风水观念揭秘宋六陵的布局营建。从南宋皇陵的变迁,可见南宋的政治文化在江南长期而复杂的发展中,又逐渐演变并形成新的有别于北宋的范式。

宋徽宗
一.宋六陵概况
宋六陵,在今浙江省绍兴市区东南约18公里富盛镇赵家岙的宝山南麓;南宋时期,其地属两浙东路绍兴府会稽县上亭乡上许里上皋村。
上皋村地方,北有宝山(雾连山),南有上皇山(新妇尖),两山草木葱茏,遥遥相望,略呈合抱之势。两山之间,是相对平旷的谷地,今为碧绿而弥望的茶园,一派江南风光(图1、2)。

图1 南宋六陵鸟瞰

图2 南宋皇陵地理形势图(采自刘未《宋代皇陵布局与五音姓利说》)
南宋有国百余年,这片茶园却是皇家禁地,先后建起七位皇帝、七位皇后(宋哲宗孟皇后、宋徽宗郑皇后、宋徽宗韦皇后、宋高宗前室邢皇后、宋高宗吴皇后、宋孝宗谢皇后、宋宁宗杨皇后)共14座“攒宫”。他们的灵柩埋葬于此,陵区总面积约在2.5万平方米,规模可观。这七座皇帝攒宫,依年代顺序,依次为宋徽宗永祐陵、高宗永思陵、孝宗永阜陵、光宗永崇陵、宁宗永茂陵、理宗永穆陵和度宗永绍陵攒宫。不知何故,后人将“七帝七后”陵地俗称为“南宋六陵”,至今通行。
“七帝七后”坟墓,既有陵号,为何又自称“攒宫”?故事要从头说起,绍兴元年(1131)宋金战事方酣,宋哲宗遗孀孟皇后,在流亡过程中,病故于绍兴,无法归葬中原故土,只好就近安厝于会稽山余脉的上皇山下,这是宋六陵营建之始。
“攒宫”之名,是戎马倥偬之际的权宜说法,据王明清《挥麈录》载,由于孟皇后在重新确立南宋政权正统性中的关键作用,朝廷本来想为她建造正式的“山陵”,但修奉官曾纡说:“帝后陵寝,今存伊洛,不日复中原,即归祔矣,宜以攒宫为名”。北宋祖宗陵寝既然在河南洛阳巩县,将来恢复中原,应该迁葬回老家,不宜径称“园陵”,宜以“攒宫”为名,意为“临时葬地”。曾纡的提议,获得众人认同。即使绍兴十二年(1142),宋金和议后,金人归还宋徽宗等人梓宫(棺木),入葬绍兴,正式上永祐陵号,依然加有“攒宫”的后缀。这与南宋临安城始终只称“行在所”,而不称“京师”的情形相仿。
上世纪六十年代兴建的平(水)陶(堰)公路,在谷地之间穿过,将陵区分为南、北两区,今人常以南陵、北陵称之。南、北陵的区分,不见于宋人记载,但符合皇陵分布的实际状况。这种说法可能出现得比较早,至少浙江图书馆藏“宋孝宗陵碑刻”民国拓本档案中已有“南林”之名。
这片茶园谷地,屡经平整,依然呈现出“东南仰高、西北低垂”的地势,南陵区的南高北低的地势尤其明显。东南高山,西北流水,据说是赵姓“角音”所利之地,即堪舆术士所谓“大利向”。但在其西北部,越靠近宝山,地势转为北高南低,则与“大利向”相违。这段话有点突兀!没有关系,我将在后文详细阐述,理解这段话,便是解锁宋六陵的密码。
南宋时期的陵园,松柏参天,殿宇连绵,是庄严肃穆的禁地。宋元鼎革之初,“番僧”杨琏真迦盗发六陵,地面建筑和地下石藏毁坏殆尽。明代屡经重修,但是陵位淆乱,制度改观,其规模仅如《万历会稽县志》所载“诸陵仅存封树,唯孝、理二陵献殿三间,缭以周垣,理宗陵有顶骨碑亭。宰牲房一所,斋宿房一所,其右为义士祠”而已(图3)。

图3 康熙《会稽县志》卷首《宋六陵图》
1949年后,因为农场、茶场的建设和破坏,明清重建的享堂、封土也尽数毁去,唯余数丛古松树,散布于谷地之间,作为众攒宫所在的唯一标识。经测年,树龄约在距今120至180年之间(图4)。

图4 南宋六陵远眺,唯有三二松树丛,标示着皇陵的存在
“自古未有不亡之国,亦无不掘之墓”,历代帝王陵墓,或多或少都有损毁,但彻底毁坏如宋六陵者,则不多见。
二.五音墓地与形法墓地
第一次来宝山的人,一定会纳闷:宋六陵南北皆山,而南宋的帝后,竟然放弃眼前的自然高地,将墓穴埋葬在两山之间的谷地,为什么?
当我们这样设问,其实就已开启了打开宋六陵之谜的钥匙。
江南卑湿。墓择高阜是自古以来的常识和惯例,史前时期太湖流域的崧泽、良渚文化,人们堆筑高大的土墩,用以埋墓;汉六朝唐宋墓葬,均选择埋葬在山麓至半山腰地带。唯独宋六陵一反常态,要解释这个奇怪的现象,须从河南巩义北宋皇陵说起。
北宋皇陵位于巩义市(原名巩县)的西南部,诸陵南依嵩山北麓,北傍伊洛河水的黄土岗地上,共有七座皇陵(宋太祖永昌陵、太宗永熙陵、真宗永定陵、仁宗永昭陵、英宗永厚陵、神宗永裕陵、哲宗永泰陵)以及宋太祖赵匡胤之父赵弘殷的永安陵,并祔葬有22个皇后,以及上千座皇室成员的陪葬墓,习称“七帝八陵”(图5)。

图5 北宋皇陵分布图
北宋皇陵的自然地势,就呈现“南高北低、东穹西垂”之状,这是宋金时期中原地区流行的“五音姓利”堪舆术的择地要求。据北宋王洙等编撰《地理新书》,人们把姓氏分成宫、商、角、徵、羽五音,再将五音与五行(土、金、木、火、水)四方相联系,推断与其姓氏对应的阳宅、阴宅方位的吉凶,即所谓“大利向”“小利向”。
“五音”是北宋官方的堪舆术,为皇室、士大夫及富裕平民阶层所遵循。自明清以来,该系统的堪舆术逐渐失传。宋元时期,中原北方地区流行以五音姓利原则指导墓地的选址和规划,我们可以将其称为“五音墓地”,例如北宋河南新郑吕夷简家族墓地、安阳韩琦家族墓地、巩县北宋皇陵,均属其例,而且是延续多代人、多房派、规划有序的家族墓地。
按照五音的分法,皇室赵姓,属于“角音”(也称“国音”)。角音与木行对应,木主东方,阳气在东,所利地形为“东南仰高、西北低垂”,这就是角音墓地的“大利向”。葬师将风水择址与丧家的贫富贵贱、愚贤寿夭乃至与国运联系起来,今天的读者受过现代科学的洗礼,知道这是胡乱联系的巫术,只要知其然而无需知其所以然,明白北宋中原地区的家族墓地通常遵循五音姓利就够了。
绍兴元年为孟皇后选定上皇山葬地,就因为太史局官员(职掌堪舆风水的技术官僚)认为其地势与巩县相仿,符合赵家人的“大利向”。南宋赵彦卫《云麓漫钞》说得明白:“永安诸陵(即北宋皇陵),皆东南地穹,西北地垂,东南有山,西北无山,角音所利如此。七陵皆在嵩少之北,洛水之南,虽有冈阜,不甚髙,互为形势。……今绍兴攒宫朝向,正与永安诸陵相似,盖取其协于音利。有上皇山新妇尖,隆祐(孟皇后)攒宫正在其下。”
坐北朝南的坟墓,却选址于“东南高、西北低”的地方,背后无高地可倚,在南方人和现代人看来不免奇怪。这是因为现代人受了后世主流的“形势派”堪舆风水观念的影响,此与“五音姓利”属于不同的风水体系,我们将以“形势派”原则指导选址的墓地称为“形法墓地”。
南方典型的形法墓地,是大家耳熟能详的地理模式:墓葬坐北朝南,位于藏风纳气的“怀抱之地”,墓穴在高处,后景开阔,自前而后,犹如我们前往南京瞻仰中山陵,拾阶而上,逐级抬升,陵园气势摄人。而宋代皇陵坐落于平地上,非但不足以壮观瞻,沿着神道向前,往献殿、陵台(封土)方向瞻礼,地势反而越走越低。这种“反常”的布局,就是宋陵拘忌于角音的缘故。
河南中原大地,一马平川,地下水位深,将墓穴埋于平地,无论是土洞墓,还是平面呈多边形、仿木构的穹窿顶砖室墓,均采用深埋的形式。“五音”择地术与其自然环境是相适应的,平地埋墓犹如在白纸上谋划,较南方山地丘陵地区,更能规划出长幼尊卑有序的家族墓地,故而为皇家和上层士大夫、富裕平民家族所乐意采纳。这么说吧,像北宋皇陵、韩琦家族这种“五音墓地”,在观念上,都是堪舆风水的祸福观念与聚族而葬的儒家伦理观念的混合体。
而在多雨、多水、多山的江南,自然条件、人文传统与中原迥异。五音姓利堪舆术并不适用于江南,南方地区流行江西、福建流派的风水术。明代义乌人王祎《青岩丛录》说:“择地以葬,其术则本于晋郭璞所著《葬书》二十篇……后世之为术者,分为二宗:一曰宗庙之法,始于闽中,其源甚远,至宋王伋乃大行。其为说,主于星卦,阳山阳向,阴山阴向,不相乖错。纯取五星八卦,以定生克之理。其学浙闽传之,而今用之者甚鲜。一曰江西之法,肇于赣人杨筠松、曾文迪,及赖大有、谢世南之逸辈,尤精其学。其为说,主于形势,原其所起,即其所止,以定位向。专指龙、穴、沙、水之相配,而他拘忌,在所不论。其学盛行于今,大江以南无不遵之者。”
福建“理气派”和江西“形势派”(或称“形法派”“峦头派”),是今天人们耳熟能详的术语,二者同出于风水先生的“祖师爷”郭璞《葬书》,其中以“形势派”为择地的主流。
葬必择地,郭璞《葬书》倡导“遗体受荫”说,死者的遗骸若得“地气”,则会福荫子孙。如何使遗骸得气?《葬书》认为“葬者,乘生气”,墓穴应卜址于“生气之地”。生气在地下流动,在某些地点,汇聚起来。“气乘风则散,界水则止”,风一吹,气就散了,遇水则气聚而不流失。所以,形势派风水,讲求“龙、砂、水、穴”四大要素。墓穴所在,后有靠山,是为“来龙”;左右有山峦回护,远处有案山照应——左青龙、右白虎、前有案,是为“砂”;墓地像一把安稳的太师椅,而前方又有河水蜿蜒流过,是为长流之“水”(图6)。

图6 云和正屏山南宋墓,就是典型的形法墓地
在江南的堪舆家看来,背风、向阳、面水、藏风、纳气的“怀抱之地”,最宜建墓。江南“形法墓地”与中原“五音墓地”是两种根本不同的墓地形态。
简单来说,在墓地形态上的差异,“五音墓地”择址于平野,可与多代人聚葬的家族墓地兼容;而“形法墓地”各自寻求独立、封闭的怀抱地形,则与家族墓地不能兼容,元末明初大儒宋濂《赵氏族葬兆域碑铭》说:“盖大江以南拘泥于堪舆家,谓其水土浅薄,无有族葬之者”。以朱熹为例,朱熹的祖父朱森,墓在福建政和县莲花峰下,祖母程氏墓在政和溪铁炉岭;父亲朱松,初葬崇安县(今武夷山市)五夫里,后改葬崇安上梅里,生母祝氏墓,在建阳县天湖之阳;朱熹夫妇墓,在建阳九峰山;朱熹长子朱塾,葬于建阳县另一个地方;次子朱埜,又埋在建阳别的地方;三子朱在,墓在建安县永安寺后。更有甚者,朱熹的祖父母、父母,居然均未完成夫妻合葬。
朱熹家族墓地如此分散,就因为他们遵循南方术数“多占风水”之故。绍熙五年(1194)因为绍兴陵地的地势卑下,五音墓地不适应南方的实际,宋孝宗永阜陵的择址引发争议,朱熹奏上《山陵议状》说“臣窃见近年地理之学,出于江西、福建者为尤盛”,就是建议以南方的“形法墓地”以取代两宋皇陵固有的“五音墓地”。
朱熹的建议,未为朝廷采纳,因为对南宋皇陵而言,“国音”是皇室承袭了两百多年的传统,即便身处江南,也必须照搬祖制,毕竟这关乎国运,甚至象征着南渡政权皇统的正统性。北宋皇陵的传统,对南渡的继承者而言,就是“祖宗故事”,除非万不得已,不可变更。尽管在朱熹等南方人看来,这种做法,悖理殊甚。
三.角姓“昭穆葬”与祖宗故事
我们说“五音墓地”是风水观念与儒家族葬观念的复合体,那么,除了术数的原则,就必然涉及不同身份成员墓穴位次的排列问题。
王洙《重校正地理新书》卷一三“步地取吉穴”条:“凡葬有八法,步地亦有八焉。八曰昭穆,亦名贯鱼。入先茔内葬者,即左昭右穆,如贯鱼之形。……唯河南、河北、关中、陇外并用此法。”
昭穆葬法,是五音墓地中流行的一种与家族墓地相适应的取穴方法,通过以墓穴在墓地中不同的位次排列来标识、规范不同家族成员之间的长幼之别,从而维护墓地的长幼尊卑秩序(图7)。关于“角音昭穆贯鱼葬”,北京大学考古文博学院刘未先生《宋代皇陵布局与五音姓利说》一文有深入研究,以下就是我对刘未研究的通俗化解读。

图7 宿白《白沙宋墓》昭穆贯鱼葬图解
五音墓地的排布,以“墓园”为基本单位,同一墓园内按不同姓氏所利的特定方位排列不同墓穴的位次,而先后不同的墓园,又按照各姓所利方位进行斜向排列——就“角音”姓氏而言,自先而后,墓园由东南至西北方向,依次斜行排列。
首先,我们必须明白五音墓地中的“墓园”概念。
在堪舆术士看来,一块平整的墓地,分成正方形或近正方形的七七四十九个方格,即49个穴位,以八干、四维、十二辰共24个汉字,标识四边的24个方位。“四维”乾坤艮巽,“艮”指东北,“巽”指东南,“乾”指西北,“坤”指西南,这是许多人熟悉的,例如宋徽宗建造的艮岳就位于开封城的东北;十二时辰,子丑寅卯辰巳午未申酉戌亥,以子、午代表北南,卯、酉代表东西;八干是甲乙丙丁庚辛壬癸。其实这些都是古人日常生活中的常用的文字,风水罗盘也就是这个模样。由此可知,角音的大利向为“坐丙向壬”,即“坐东南、向西北”。
七七四十九穴,理论上均可埋墓,但事实并不如此,风水先生认为只有甲、丙、庚、壬四穴为四阳干,可以安穴。其余诸穴,均不可用;正中位置的穴位,名叫“地心”,也称明堂,所谓“天子葬明堂”,只有皇帝才可安穴,臣庶尤其不可僭用。这就是五音墓地的一个完整单位——墓园。
在现实中,上述规定可以稍加变通,逐一说来,会很复杂。我们既然不想改行看风水,只要足够说明宋六陵的规划原则即可。简单说吧,这49个穴位,与姓利相关的最适宜埋墓的穴位只有丙、壬、甲三穴;同一墓园内也强调位次的长幼尊卑,所以也称尊、次、卑三穴。
待用完尊、次、卑三穴,剩下的46穴皆不可用,就在已经“饱和”的墓园(最早设立的墓园,即“祖坟”所在)以外,斜向开辟一个新墓园;在新辟的墓园,同样的法则,再次上演,待填满尊、次、卑三穴,又在新墓园之外,斜向再开辟一个更新的墓园。
在角音墓地中,旧墓园趋于饱和,便在其西北方向,但不能低于旧墓园的东西轴线(“再向正西偏北辛地作一坟,不得过酉地”)新辟一墓园。这就是《地理新书》的“昭穆葬”所谓“角姓祖坟下丙、壬、甲三穴葬毕,再向正西偏北辛地作一坟,谓之昭穆葬,不得过酉地,分位仿此”的确切含义(图8)。

图8 《重校正地理新书》“墓园”及“昭穆葬”图解(采自刘未《宋代皇陵布局与五音姓利说》)
如此这般,子子孙孙,周而复始,越是晚辈家族成员的墓园距离祖坟越远,晚起的墓园,便一路向西北斜向排布过去。当然,在实际的丧葬活动中,不可能有广阔的土地可供无限排布。所以,大家族的墓地都有分区,巩义北宋皇陵更分为规模宏大的四个陵区。
需要指出的是,五音墓地以墓园作为规划单位,正中心的明堂位,是开辟墓园时用来埋藏买地券的地方,所谓“斩草立劵”,作为向山神、土地神购买坟地的凭证,普通臣僚和平民绝不能用以安穴埋墓。唯独位居“九五至尊”的天子,可以不循常规,即元张景文《大汉原陵秘葬经》所谓“天子葬明堂”。
宋代皇陵,安穴于明堂,与常人不同,除此则遵循角音墓地的一般原则。一座皇陵的上宫围墙,就是一个独立墓园,陵台(封土、玄宫)居于墓园的正中,正是明堂之位,也就是说,帝陵与普通人不同,在明堂安穴,无需像常人那样按照丙、壬、甲三穴来规划。后起的帝陵,位于前一帝陵的西偏北,则与“角姓昭穆葬”普遍原则一致。
明乎此,我们再来考察北宋皇陵。巩义北宋皇陵,分为四大陵区:西村陵区,有宣祖永安陵、太祖永昌陵、太宗永熙陵;蔡庄陵区,仅有真宗永定陵;孝义陵区,有仁宗永昭陵、英宗永厚陵;八陵陵区,有神宗永裕陵和哲宗永泰陵。以年代最接近南宋的八陵陵区的宋神宗、哲宗陵为例,具体说明北宋制度(图9)。

图9 北宋皇陵八陵陵区宋神宗、哲宗陵分布图
宋神宗永裕陵,由上宫和下宫,以及钦圣宪肃向皇后、钦慈陈皇后、钦成朱皇后、显恭王皇后等4座皇后陵组成。此外,还有若干皇室成员的陪葬墓。陵区南北长约2200米、东西宽约500米。永裕陵上宫前有神道,神道上设有望柱和52件石雕像;上宫围墙呈正方形(即前述的“墓园”,围墙边长约240米),覆斗状的陵台位于上宫正中,底部边长约48米(即墓园之“明堂”位);下宫,位于上宫的西北方向(即所谓“坐丙向壬”),是供奉大行帝后御容之所,经勘探南北长约150米、东西宽约130米。在上、下宫之间,祔葬有4座后陵。所有的陪葬墓,一律分布于下宫的西北。
宋哲宗永泰陵,位于永裕陵上宫的西北方向,即前文所分析的当旧墓园(祖坟)趋于饱和,便在祖坟西北方向新辟一墓园。
永泰陵制度与永裕陵完全相同,亦由上、下宫和祔葬于上下宫之间的昭怀刘皇后陵,以及下宫西北的陪葬墓组成。陵区南北长约1000米,东西宽约370米,就形制而言,犹如永裕陵在其西北方向,复制、粘贴了一遍。
要之,北宋皇陵的制度高度定型,概括如下:
一、皇陵平面布局整齐划一,均由上宫、上宫、皇后陵和陪葬墓组成。帝、后上宫,平面呈方形,以陵台为中心,覆斗状的陵台下方,就是玄宫(皇堂、墓室);陵台前方,建有献殿,为举办上陵祭祀礼仪之所。
二、上、下宫分离,下宫位于上宫的西北,显然与角音“坐丙向壬”的大利向有关。非惟下宫如此,皇后陵、陪葬墓等,均位于帝陵上宫的西北方向。
三、同一陵区内,后起的帝陵,位于前一帝陵的西北方向;同一帝陵兆域内,后起的皇后陵,均位于前一皇后陵的西北,同样由东南(丙地)向西北(壬地)斜向依次排列。从各陵的相对位置看,尊长居东南,卑幼在西北,角音墓地所利地势为“东南仰高,西北低垂”,愈往西北,地势愈低。
四、帝后采用“同茔异封”的合葬形式,即“同茔不同穴”,合葬于同一帝陵兆域,但皇后另起陵园和陵台,并祔葬于上、下宫之间。
我之所以不厌其详地讨论“角音昭穆葬”与北宋皇陵制度,因为这是南宋的皇位继任者必须遵循的“祖宗制度”,是认识南宋皇陵制度的基础。尽管宋六陵攒宫在设置上多有减省,例如不设陵台和石像生,规模也大为缩小,但在基本制度层面,在南宋中期以前,可以用全面照搬祖宗制度来形容(图10)。

图10 北宋皇陵布局与昭穆贯魚葬关系图解(采自刘未《宋代皇陵布局与五音姓利说》)
一言以蔽之,南宋六陵就是北宋皇陵在江南的翻版。正所谓不晓中原就无以晓江南,不知北宋便无以知南宋。
四.陵区的形成和布局
说完制度,后面的事情就简单了。同样的历史,历史学家看重制度及其运行,普通读者关注人物的故事和命运。人是制度下的人,不敢说人是制度的奴隶,至少人的生存状态和命运与其生活时代的制度和文化密切相关。严肃的历史本该如此,不是我故意想把故事讲得枯燥一点。
靖康二年(1127),金人俘掠徽钦二帝、皇后、嫔妃、皇太子、亲王、公主、宗室和其他在京大臣北返,皇室成员中唯有宋哲宗孟皇后,宋徽宗第九子康王赵构(即稍后登基的宋高宗)等个别人侥幸逃脱。
绍兴元年(1131)四月孟皇后崩于越州(绍兴府),六月攒于上皇山新妇尖下,并以泰宁寺为下宫。这是最先入葬宋六陵的成员,也是陵区规划的基准点。泰宁寺本为陆游祖父陆佃的功德坟寺,后来成为南宋前期众攒宫的陵寺,《嘉泰会稽志》载:“永祐、永思、永阜、永崇四陵修奉皆在其地,故泰宁寺益加崇葺云。”
宋代典籍《宋会要辑稿》和《中兴礼书》,对宋宁宗永茂陵以前的攒宫的营建和位次有详细记载,可以据此推测并大致复原“七帝七后”攒宫的位次和平面布局。
绍兴元年,孟皇后(昭慈圣献)攒宫下葬于会稽县上皇村,其地东南高山,西北流水,乃角姓大利之地,“神园方百步”,以泰宁寺为下宫,专奉香火。
绍兴十二年(1142),宋金和议成,金人归还宋徽宗、郑皇后(显肃)、宋高宗邢皇后(宪节)梓宫,并遣送当时仍在世的宋高宗生母韦皇后南返。宋徽宗等人梓宫原拟在临安府或会稽县龙瑞宫安葬,然未果行。最后,徽宗永祐陵落址于孟后攒宫“西北地段”顺次择穴,即孟后神园“近北偏西”的五十步稍外。依角音昭穆次序,郑皇后、邢皇后攒宫在徽宗攒宫北或正北偏西。孟后、徽宗、郑后、邢后四攒宫的神园、禁地合计用地“二百一十七亩五十七步”。
绍兴二十九年(1159)韦皇后崩,安穴在“永祐陵篱寨内显肃皇后神围正西约一十九步”。
淳熙十四年(1187)宋高宗(永思陵)崩,次年三月下葬。永思陵上宫在永祐陵西北,在韦皇后攒宫“正西向南”。永思陵上宫方位,及其与永祐、宪节诸陵距离的数据,在《中兴礼书续编》卷四二中有详细记载。
宋高宗吴皇后(宪圣慈烈)晚十年卒,袝攒于“永思陵正北偏西”,应在永思陵上、下宫之间。
绍熙五年(1194)六月九日宋孝宗(永阜陵)崩,葬地的选择曾引起朝廷上下的激烈争论,最终上宫定在“在永祐陵下宫之西南,永思陵下宫之东南那趱向南石板路上”修建。若依角姓昭穆次序,后起攒宫应该位于前一攒宫的西北,自东南向西北顺次排列,永阜陵上宫应该选址在永思陵西北,但因为那里“土肉浅薄”,最终落地于永思陵下宫与永祐陵下宫之间,已经突破了角音墓地的昭穆次序。
庆元六年(1200)八月八日,宋光宗(永崇陵)崩,次年三月,安穴在“永阜陵西,永思陵下空闲地段”(图11)。

图11 “南陵区”诸攒宫位次复原示意图(采自刘未《宋代皇陵布局与五音姓利说》)
嘉定十七年(1224)宋宁宗(永茂陵)崩,因永崇陵西北,地势卑下,“相视迫溪”,实在无地可择。永茂陵上宫决定转移至泰宁寺山,并拆迁泰宁寺,据以为陵。事实上,永茂陵已经离开了新妇尖的南陵区,新辟的宝山北陵区,既未遵循角音墓地昭穆次序,甚至已突破角音墓地的大利向,开始向形法墓地转变。
绍定五年(1232)杨皇后(恭圣)崩,次年四月袝葬永茂陵之西北。
宋理宗(永穆陵)、宋度宗(永绍陵)二陵的位次,文献无载,据宋六陵遗址现场判断,应在北陵区的永茂陵之西北(图12)。

图12 南宋六陵攒宫位次复原示意图(据刘毅《南宋绍兴攒宫位次研究》)
综上所述,南宋六陵分为南、北二陵:南陵区,即新妇尖陵区;北陵区,即宝山陵区。
南陵区,以孟皇后攒宫为基准点,其西北为宋徽宗永祐陵,永祐陵北偏西为显肃郑皇后、宪节邢皇后、显仁韦皇后三座攒宫;永祐陵西北为宋高宗永思陵,永思陵上宫北偏西为宪圣慈烈吴皇后攒宫;宋孝宗永阜陵上宫,在“永祐陵下宫之西南,永思陵下宫之东南”的位置;而宋光宗永崇陵,则葬于永思陵上宫的西北位置。诸帝陵上宫方35步,下宫方55步,哲宗孟皇后、高宗吴皇后攒宫方36步,其余祔葬的皇后攒宫,均方25步,可见孟、吴二皇后的地位之特殊。
而北陵区,与南陵区分离,另以宋宁宗永茂陵为新基准点,其西北依次为恭圣仁烈杨皇后、宋理宗、度宗三座攒宫(图13)。

图13 南宋六陵诸攒宫的上宫位次复原示意图
南、北陵区的形成,先后两个主要节点,一是宋孝宗永阜陵局部突破了角音墓地的昭穆序次,二是宋宁宗永茂陵则整体性地突破了角音墓地的择址模式。
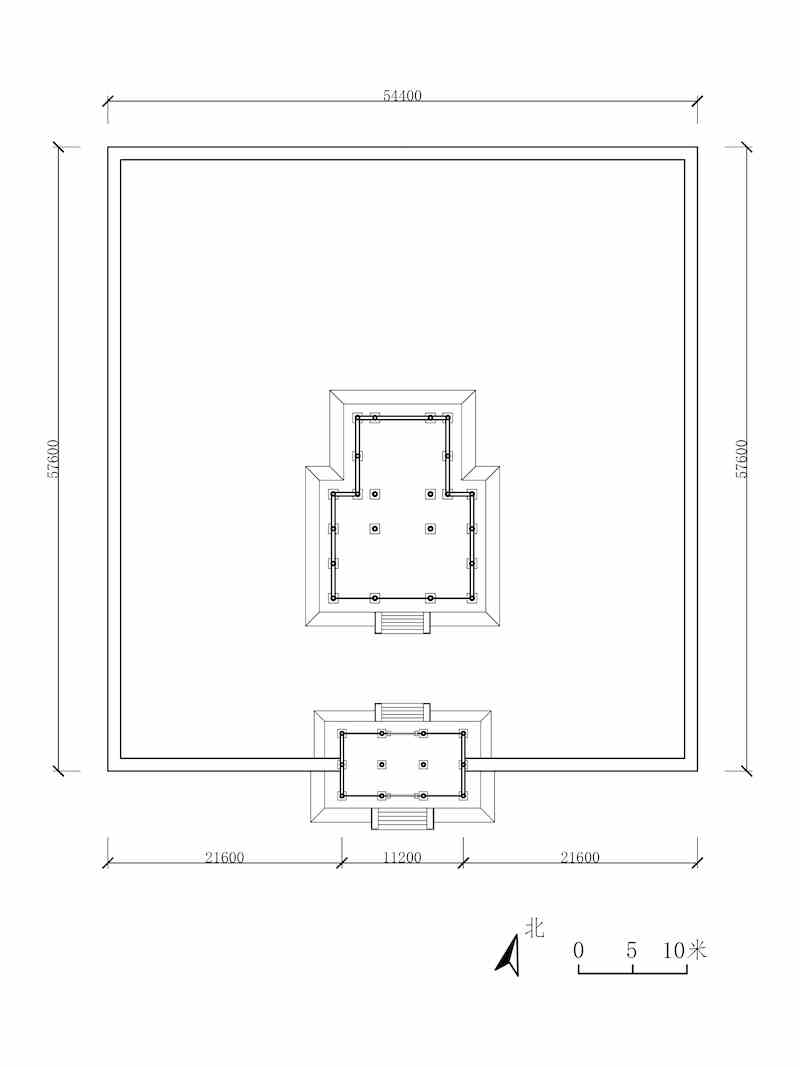
2018年浙江省文物考古研究所在南陵区发掘的“一号陵园”上宫遗址,揭示了某座皇陵的上宫垣墙、门殿、享殿(献殿)、享殿后龟头屋石藏等遗迹;古建筑学者结合文献初步复原了上宫的建筑形态,并推测一号陵遗址应为宋徽宗、孝宗或光宗三位皇帝攒宫中的某座上宫。这是南宋六陵考古的突破性成果(图14、15、16、17)。

图14 宋六陵“一号陵”遗址发掘场景航拍图

图15 宋六陵“一号陵”遗址平剖面图

图16 宋六陵“一号陵”遗址总平面复原示意图

图17 宋六陵“一号陵”陵园遗址整体复原鸟瞰图
五.从“五音墓地”到“形法墓地”
绍熙五年(1194)六月九日,太上皇帝宋孝宗驾崩于重华宫。围绕其葬礼和山陵选址所引发的轩然大波,是“庆元党禁”前夕的大事件。
宋孝宗病重期间,宋光宗拒绝过宫问疾。在孝宗驾崩后,光宗拒绝主持丧礼,一时人情汹汹、政局动荡。
七月三日,在孝宗“大祥”前夕,左丞相留正称疾遁去。七月五日,知枢密院事赵汝愚联合知閤门事韩侂胄、工部尚书赵彦逾,经太皇太后吴氏默许,扶立嘉王登基,是为宋宁宗,史称“绍熙内禅”。八月十八日,有定策功的枢密使赵汝愚升为右丞相。
与此同时,永阜陵在宝山择址工作在紧张进行中。七月十六日,“按行使副孙逢吉、吴回言:荆大声等相视大行至尊皇圣帝神穴,在永祐陵下宫之西南,永思陵下宫之东南,那趱向南石板路上,乞差官覆按施行。诏,权工部侍郎兼侍讲黄艾充覆按使,入内内侍省押班续康伯副之”。因为太史局的风水先生选定的位次,与角音昭穆序次相违,孝宗玄宫本该定于永思陵上宫之西北,但其地“土肉浅薄”,遂改卜至永思陵西南。然而,朝廷又未以为然,又经过反复讨论,改就昭慈、永祐下宫修建,位置比荆大声所定“高六尺三寸”,又经孙逢吉等人复勘,最终确定了该位置。
尽管经过反复调整,地下水位依然较高,营建玄宫石藏子(墓室)格外坚固,《宋会要辑稿》载其玄宫“于箱壁石藏外五尺,别置石壁一重,中间用胶土打筑,与石藏一平”,致使“工力倍增”(图18)。

图18 宋六陵石藏子平剖面复原想象图(采自郭黛姮《南宋建筑史》
自永思陵以西,地势愈卑,水位愈高,不宜建陵,这是在江南地区照搬“五音墓地”模式所无法克服的矛盾。
赵汝愚明确反对该选址方案,他认为巩县皇陵“制度崇深”,皇堂下深五十七尺。南渡后,攒宫“实居浅土,蔽以上宫”。东南地区,所至皆山,地势局促,自然环境与中原不同,不能照搬五音模式。而恢复中原遥遥无期,不如趁早放弃绍兴陵地,另觅地势高亢的地方。
但留正、刘德秀等人则主张依例权攒于绍兴。据叶绍翁《四朝闻见录》载,赵汝愚、叶适、詹体仁等主张放弃绍兴陵地,并建议让朱熹门生、著名的风水术士蔡元定重新选址,而刘德秀坚持认为“山水之修,无如越地,盖甲于天下者也,宅梓宫为甚宜。且迁易山陵,大事也”,支持葬于绍兴。
改迁山陵的主张遇阻后,赵汝愚未再坚持己。但在十月,朱熹来到临安后,上《山陵议状》,再次挑起争议。后来,朱熹曾多次抱怨赵汝愚不坚持原则。
七月十一日,赵汝愚召时任知潭州的朱熹赴京论事。八月五日,任命朱熹为焕章阁待制兼侍讲。次日,朱熹离开潭州,启程前往临安。
九月十四日,朱熹行至衢州,致书蔡元定,招其同往临安,一起讨论改卜山陵之事。《四朝闻见录》明确指出朱熹“信用蔡说,上书建议乞以武林山为孝宗皇堂,且谓会稽之穴浅粗而不利,愿博访草泽以决大议”。
蔡元定,一介布衣,人称西山先生,精通风水术数,庆元党禁期间,以“妖人”罪名,坐谪道州而死。朱熹本人在建阳的坟墓,即为蔡元定所卜。朱熹就改卜山陵之堪舆问题请教蔡元定,更拟将其召至朝廷,这就是朱熹《山陵议状》中“博访草泽”之意。庆元二年(1196)党禁日酷,监察御史沈继祖弹劾朱熹十大罪,其中一大罪名,就是朱熹“不顾祖宗之典礼,不恤国家之利害”招引“妖人”蔡元定妄议山陵。
十月初二日,朱熹至临安城;初五日,履任焕章阁待制兼侍讲。十月十日,在朝供职第一事,便上洋洋数千言的《山陵议状》,可见其对改卜山陵的深思熟虑和急迫心情。
在《山陵议状》中,朱熹明确反对五音,认为“国音坐丙向壬之穴”不合常理,朝廷世守其法,非但无福报,反而招致靖康国难这样的祸灾,可见其为无稽之谈。在江南照搬国音,等同于将宋孝宗的梓宫和遗骸置于水中而不顾,不如趁早广招术士,博访名山,寻求可葬之处,“若欲求之,则臣窃见近年地理之学出于江西、福建者为尤盛,政使未必皆精,然亦岂无一人粗知梗概,大略平稳,优于一二台史者?”——《山陵议状》的实质,其实就是以江南形法墓地替代中原五音墓地。朱熹建议由江西、福建民间术士(即蔡元定)负责选址,是以南方民间术数替代官方地理系统的五音姓利。
朱熹言辞激烈,毫不顾忌“五音”是承袭已久的祖制,也不考虑迁徙山陵必将延长葬期并滋生纷扰,朝廷正值多事之秋,并无可能采纳朱熹的意见。后来,蔡元定窜死于贬所,沈继祖攻击朱熹“不顾祖宗之典礼,不恤国家之利害”,固然有上纲上线之嫌,但就事实本身而言,相差不远。
十月二十三日,朱熹在经筵留身时,又向宋宁宗面陈四事,批评宋宁宗滥用内批和韩侂胄干政弄权,重申《山陵议状》的主张,认为改迁山陵是“今日最急之务”,原来的选址“既不为寿皇(宋孝宗)体魄安宁之虑,又不为宗社血食久远之图”。朱熹的所言所行,注定了他被驱逐的命运。
如果说,永阜陵在昭穆位次上的突破,只是因应江南实际状况的局部调整;那么,后来宋宁宗永茂陵在“北陵”另辟新区,则是陵园规划原则的大转折。
嘉定十七年(1224)闰八月三日宋宁宗崩,按角音昭穆序次,本应选址于光宗永崇陵之西北。但永崇陵上宫以西,地势更低,并“相视迫溪”,确实已经无地可择。
据《宋会要辑稿》载,闰八月二十六日,诏以参知政事宣缯为攒宫总护使,礼部侍郎杨烨为按行使;二十九日,按行使杨烨等人选定陵址:
判太史局周奕等相视得泰宁山形势起伏,龙虎掩抱,依经书于此创建大行皇帝神穴亦随合,乞差官覆按施行。……先是,太史局周奕等于永崇陵之下相视,迫溪无地可择。继至泰宁寺山标建,故命使副覆按。既而,聂子述等言,恭惟大行皇帝迁驭上宾,神宫定卜,而有泰宁寺者,素擅形势之区,名为绝胜之境。冈峦怀抱,气脉隐藏,朝揖分明,落势特达。是乃天造地设,储之百年,以俟今日之用。非大臣阅历之久,主张之力,上以闻陈两宫,下以镇压群议,则僧徒宁保其不为动摇哉!今此神穴,坐壬向丙,亦与国音为利。益伏望明饬有司,早严修奉。上谓使副曰:泰宁与昭慈相去多少?使副奏曰:昭慈陵侧仅一里许,往来最便。上曰:甚善。乃从之。
南陵区无地可选,永茂陵遂改卜至泰宁寺所在的泰宁寺山,此处“形势起伏,龙虎掩抱,……冈峦怀抱,气脉隐藏,朝揖分明,落势特达”,俨然已为形法派术士的描述性语言。由“非大臣阅历之久,主张之力,上以闻陈两宫,下以镇压群议,则僧徒宁保其不为动摇哉”句判断,选址过程也曾引发巨大争议,毕竟“五音之术”承袭已久,改变必有阻力。
永茂陵系拆迁泰宁寺而建,宋理宗曾向覆按使使副聂子述等人询问:“泰宁与昭慈相去多少”?当使副回答“昭慈陵侧仅一里许,往来最便”。泰宁寺不在南陵区,而依宝山而建,故有“泰宁寺山”之说。
永茂陵改卜至宝山,新辟北陵区,既未遵循昭穆序次,甚至已突破五音墓地模式,向形法墓地转变。《宋会要辑稿》说永茂陵“今此神穴坐壬向丙”,一改国音的大利向“坐丙向壬”,实由“大利向”转变为“小利向”,所以覆按使辩称“亦与国音为利”。
由于南陵区无穴可择,永茂陵新辟北陵区,其选址标准,形法墓地因素可能已占据主导,而角音降至从属地位。据周必大《思陵录》记载,早在永思陵选址时,人们就注意到泰宁寺有山陵气象,因为泰宁寺僧人贿赂太史局才得以幸免。南渡以来,在太史局的技术传统中,五音并非绝对刚性的规定,只是祖制因循已久,变革不易,直到永茂陵选址,实在因为无地可择,遂改弦更张。
行文至此,回顾当年围绕永阜陵择址的争议,南方背景的朱熹、赵汝愚、叶适、詹体仁等人主张因地制宜,固然有其合理性,但必须考虑“祖宗故事”与南渡政权的特殊性,一般士庶并无政治包袱,南渡之后,大可入乡随俗,而“国音”术数关乎皇室子嗣兴旺、政权合法性和国运兴衰,岂可轻易变更!朱熹激烈而不妥协的抗争,效果适得其反,教训可谓深刻。而《山陵议状》“泛求壮厚高平可葬之处”的主张,三十年后,在永茂陵方才得以部分实施。
从永阜陵到永茂陵,从五音墓地向形法墓地的过渡,可见南渡政权在中原与江南的传统和现实、在坚守祖制与“在地化”之间的摇摆和选择。南宋的政治文化,多承袭北宋而来,但在江南长期而复杂的发展中,又逐渐演变并形成新的范式,南宋皇陵的变迁,是为一例。
